1 / 0



Check appliance compatibility
How to find your E-Number
The model number (E-number) is located on the type plate of your device.
Technical Overview
Product group for which the accessory is available
Hob
Specifications
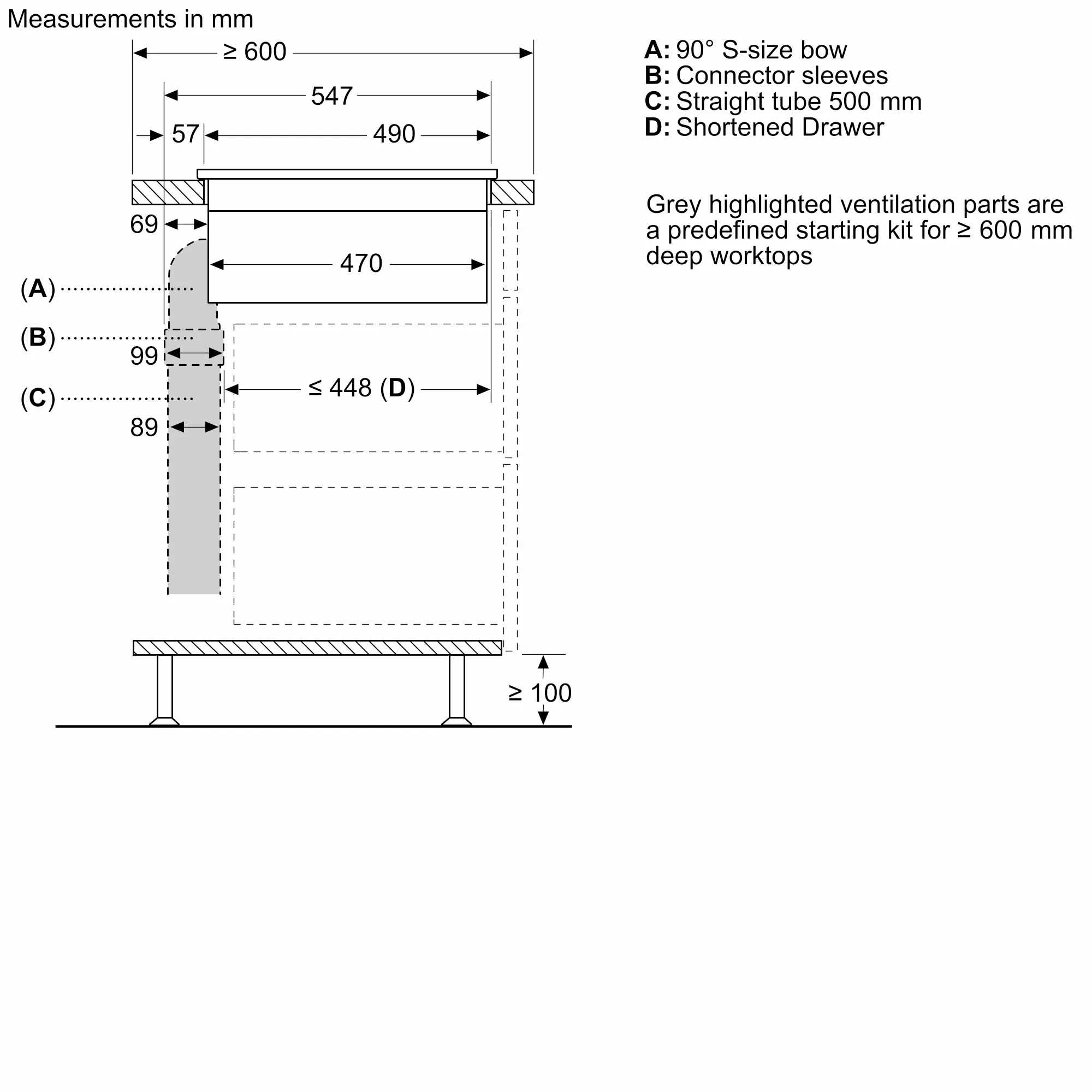
Accessory starter kit for ducted extraction configurations of your cooktop with integrated ventilation module in kitchens with worktop depths of 60 cm or larger.
Kit consisting of:
4 high-performance, low-noise acoustic filters for significantly lowernoise and strongly improved psycho-acoustics.
Vertical 90° “S” bow flat duct element (male)
Connector sleeve (female) to combine male flat duct elements
Straight tube element (male, 500 mm)
Further ducting elements must be ordered additionally, according to the customized planning for your specific installation situation.